Boerderijwoning
Ruime hoekwoning met een bijzondere ramenpartij
Kenmerken van Visserstraat 7
Inclusief: klassiek dakkapel / Inclusief: L-vormige woonkamer / Optioneel: aangebouwde berging of bijkeuken / Oppervlakte: 128 m2
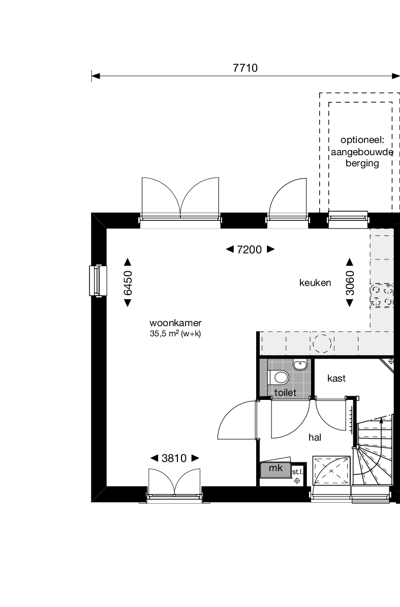
Begane grond
- ruime entreehal met separaat toilet en trap naar de eerste verdieping
- riante woonkamer met provisiekast
- open keuken
1e verdieping
- overloop met trap naar de zolder
- 3 slaapkamers
- badkamer voorzien van toilet, douche en wastafel


